Please ensure Javascript is enabled for purposes of website accessibility Housing Options | University of West Florida
Skip to main content

Housing Options


Freshman Housing Options

Most first year students live together in Martin Hall, but as a Freshman, you are eligible to live in either Heritage Hall, Presidents Hall (STEM LLC only) or Pace Hall (Honors LLC) as well. You can also request to be added to a Learning Living Community (LLC) where you’ll be placed in a residence hall along with peers who share similar interests.

Freshman Residence Halls
Residence HallLayoutBathroom
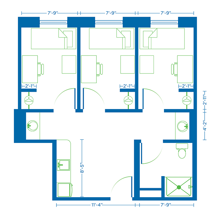
Heritage Hall

Three-person deluxe suites
Private bedrooms

Four-person mixed deluxe suites
Private and shared bedrooms

Private bathrooms

Martin Hall

Shared Junior Suite (double occupancy)

Private bathrooms

Pace Hall

Shared Junior Suite (double occupancy)

Private bathrooms

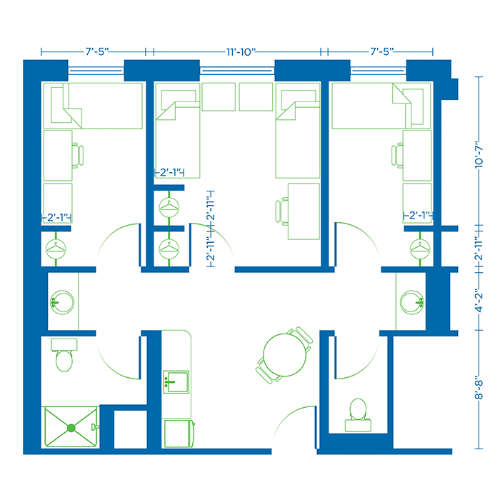
Presidents Hall

Three-person deluxe suites
Private bedrooms

Four-person mixed deluxe suites
Private and shared bedrooms

Private bathrooms


Upperclassman Housing Options

Upperclassmen can choose from six residence hall options. If you are currently living on campus, and will be living on campus next semester, you have the option to let Housing know what your space and roommate preferences are. Visit the online room selection page to learn more.

Upperclassman Residence Halls
Residence Hall Layout Bathroom
Argo Hall

Shared Junior Suite (double occupancy)

Private bathrooms
Heritage Hall

Three-person deluxe suites
Private bedrooms

Four-person mixed deluxe suites
Private and shared bedrooms

Private bathrooms
Pace Hall

Shared Junior Suite (double occupancy)

Private bathrooms
Presidents Hall

Three-person deluxe suites
Private bedrooms

Four-person mixed deluxe suites
Private and shared bedrooms

Private bathrooms
Village East Apartments

All private rooms in shared apartments

  • 2 bed/1 bath units
  • 4 bed/2 bath units
 
Village West Apartments

All private rooms in shared apartments

  • 2 bed/2 bath units
  • 4 bed/2 bath units